Attefallshus Vibo Njuta Funkis 25-1
Attefallshus Vibo Njuta Funkis 25-1
En populär modell av attefallshus i så kallad funkisstil. Ett trädgårdshus som kan användas både som gäststuga/gästhus eller bastu och kanske även som förråd.
Beskrivning
Beskrivning
Tillverkad av PEFC-certifierat virke i Sverige, är det ett hållbart alternativ för dig som inte vill kompromissa med kvaliteten.
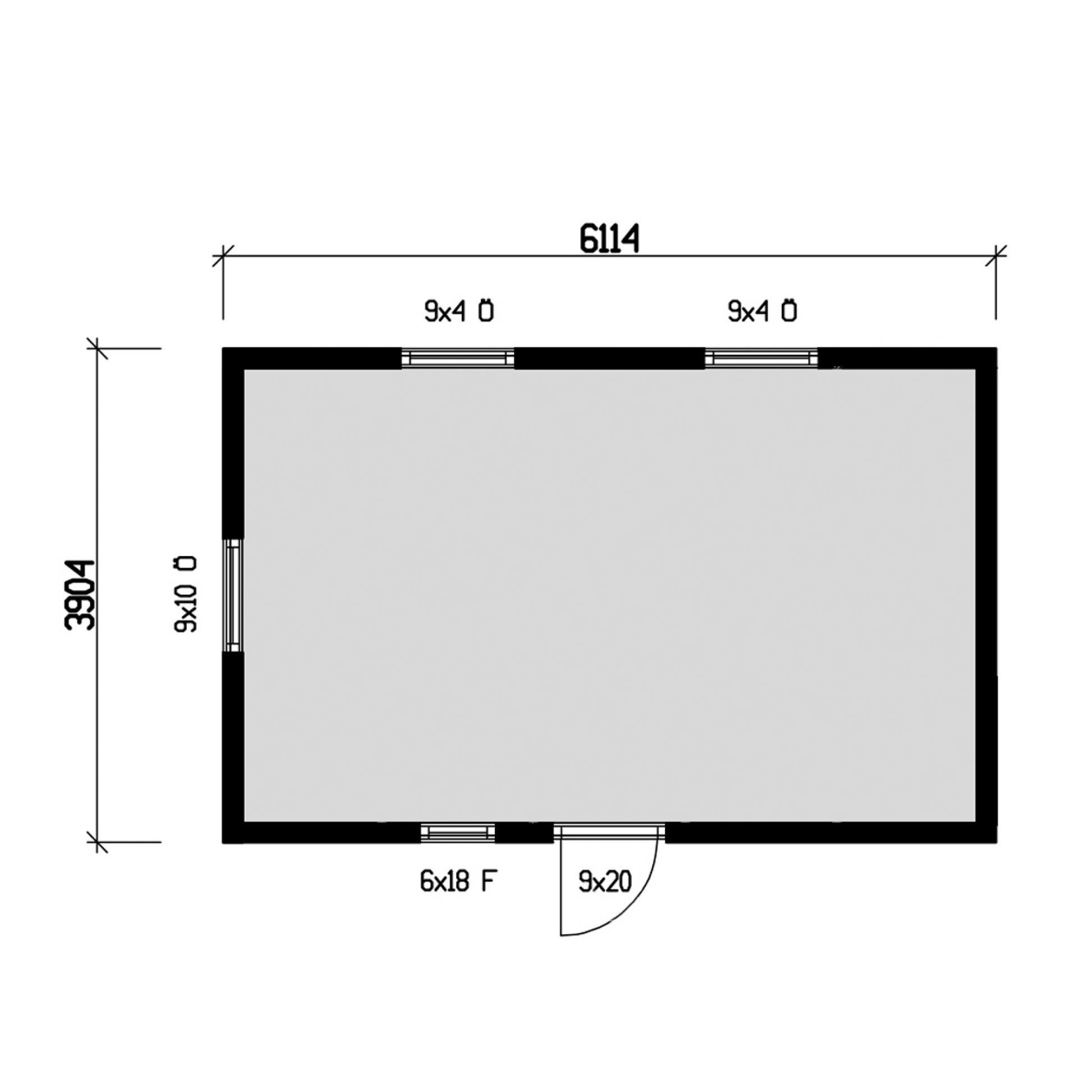
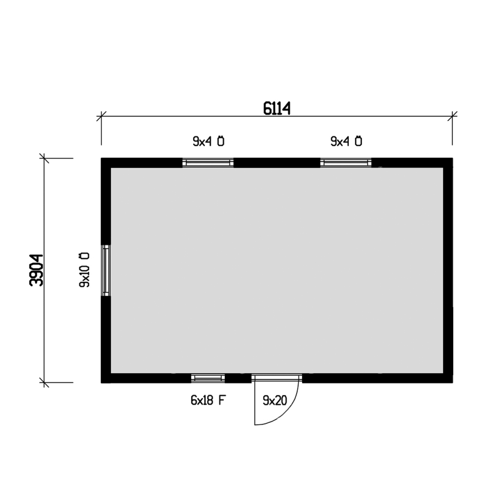
Produktspecifikation
Produktspecifikation
| Specifikation | Värde |
|---|---|
| Byggyta | 24,3 m² |
| Takyta | 32,6 m² |
| Taklängd | 6600 mm |
| Takfallslängd | 4941 mm |
| Taklutning | 10° |
| Snözon | 3,5 |
| Totalhöjd | 3700 mm |
| Högsta invändiga höjd | 2970 mm |
| Lägsta invändiga höjd | 2335 mm |
Dokument
Dokument
Monteringsanvisningar för din stuga hittar du under monteringsanvisningar.
Här kan du ladda ner dokument till sin stuga:
Tekniskt information
Tekniskt information
Enkel montering – steg för steg
Vi har samlat allt du behöver för att din montering ska bli så enkel som möjligt. Från tydliga monteringsfilmer till praktiska checklistor och instruktioner till dig. Oavsett om du är van byggare eller gör det för första gången, finns vi här för att göra processen trygg och smidig.
Välj rätt behandling
Det är viktigt att du ytbehandlar det obehandlade träet rätt för att det ska håla livet ut.
Vi har samlat ann information så du enkelt väljer rätt.
Attefallshus för livets alla behov
Våra attefallshus i trä är skapade för dig som söker något mer än bara extra utrymme – du vill ha en plats som känns genomtänkt, hållbar och vacker att vistas i. Med en stabil stomme, smart konstruktion och flexibel design blir det här ett hus som formas efter din vardag, dina behov och din stil. Oavsett om du bygger för gäster, uthyrning, arbete eller lugn och ro – så börjar allt med en enkel idé och slutar med något alldeles eget.
Designa din egen stuga
Med vår modulbyggare skapar du enkelt ett attefallshus som passar just dig. Välj planlösning, fönster, panel och tak – och se priset uppdateras direkt. Designen är din & vi bygger den.

Svensktillverkat
Vibostugan är PEFC-certifierade – en märkning för hållbart skogsbruk som säkerställer ansvarsfullt bruk av skogens resurser och främjar biologisk mångfald.



